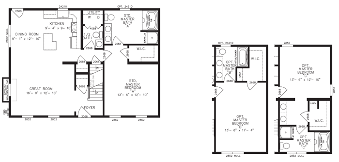
Cape Cod Floor PlansBarreView Barre DetailsFloor Size: 27’4″x42’0″ Bedrooms: 3 Bathrooms :2View/Print Barre Floor PlanBellaireView Bellaire Details 1257 Sq. Ft. First Floor Size: 27’4″x46’0″ Bedrooms: 2 Bathrooms: 2Optional Finished Upstairs 2nd Floor: Bedrooms: 2 Bathrooms: 1View/Print Bellaire Floor PlanBrandywineView Brandywine Details1411 Sq. Ft. First Floor Size: 13’8″x27’4″ 27’4″x38’0″Optional Finished Upstairs: 17’x38’0″Bedrooms: 2 (3) Bathrooms :2 (3)View/Print Brandywine Floor PlanBridgehamptonView Bridgehampton1202 Sq. Ft. First Floor Size: 27’4″x44’0″ Bedrooms: 2 Bathrooms 1 View/Print Bridgehampton Floor PlanChamplainView Champlain Details1041 Sq. Ft. First Floor Size: 27’4″x38’0″ Bedrooms: 1(2) Bathrooms :1 (2)Optional Finished Upstairs 2nd Floor: 17’0″x38’0″ Bedrooms: 2 Bathrooms: 1 View/Print Champlain Floor PlanCoventryView Coventry Details 1448 Sq. Ft. First Floor Size: 27’4″x48’0″/58’0″ Optional Finished Upstairs 2nd Floor: 17’0″x48’0″Bedrooms: 4 Bathrooms :1 1/2 (2)View/Print Coventry Floor PlanCrestmontView Crestmont Details1413 Sq. Ft. First Floor Size: 27’4″x27’6″ 25’0″x14’0″ 25’0″x12’6″Optional Finished Upstairs 2nd Floor: 17’0″/14’8″x54’0″Bedrooms: 3(4) Bathrooms : 2View/Print Crestmont Floor PlanHomestead IVView Homestead IV984 Sq. Ft. 27’4″x36’0″ Bedrooms: 2 Bathrooms : 1View/Print Homestead IV Floor PlanKillingtonView Killington Details 1334 Sq. Ft. First Floor Size: 27’4″x36’0″ 25’0″x14’0″ Bedrooms: 1(2) Bathrooms: 2(3)Optional Finished Upstairs 2nd Floor: 17’0″/11’5″x50’0″ Bedrooms: 2 Bathrooms: 1View/Print Killington Floor PlanNorfolkView Norfolk DetailsFloor Size: 27’4″x38’0″Bedrooms: 3 Bathrooms :2View/Print Norfolk Floor PlanOakmontView Oakmont Details 1684 Sq. Ft. First Floor Size: 27’4″x36’0″ 2-25’0″x14’0″Optional Finished Upstairs 2nd Floor: 17’x11’5″ x64’0″Bedrooms :3 Bathrooms :1 1/2 (2)View/Print Oakmont Floor PlanPoconoView Pocono Details 1159 Sq. Ft. First Floor: 26’4″x44’0″Optional Finished Upstairs 2nd Floor: 17’0″x44’0″Optional Kitchen Bedrooms: 2(4) Bathrooms :2 (3)View/Print Pocono Floor PlanRaleighView Raleigh Details1093 Sq. Ft. First Floor Size: 27’4″x40’0″Optional Finished Upstairs 2nd Floor 17’0″x40’0″Bedrooms: 2 (4) Bathrooms :1 (2)View/Print Raleigh Floor PlanSenecaView Seneca Details 1093 Sq. Ft. First Floor Size: 27’4″x40’0″Optional Kitchen: 9’3″x12’10”Bedrooms: 2 Bathrooms :1View/Print Seneca Floor PlanShenandoahView Shenandoah Details 2069 Sq. Ft. 41’0″x68’0″/ 64’0″/40’0″Bedrooms: 3 Bathrooms : 2View/Print Shenandoah Floor PlanTimber RidgeView Timber Ridge Details1776 Sq. Ft. First Floor Size: 2-13’8″x25’0″ 27’4″x40’0″Bedrooms:3 Bathrooms :1 (2)View/Print Timber Ridge Floor PlanValeView Vale Details820 Sq. Ft. First Floor: 27’4″x30’0″ Optional Finished Upstairs 2nd Floor: 17’0″x30’0″ Bedrooms: 1 (optional loft) Bathrooms:1View/Print Vale Floor PlanWarwickView Warwick Details 1312 Sq. Ft. First Floor Size: 27’4″x48’0″Optional Finished Upstairs 2nd Floor 17’0″x48’0″Bedrooms: 2(4) Bathrooms: 2 (3)View/Print Warwick Floor PlanWestminsterView Westminster Details 1264 Sq. Ft. First Floor Size: 26’4″x48’0″Optional Finished Upstairs 2nd Floor: 17’0″x48’0″Bedrooms: 4 Bathrooms 3View/Print Westminster Floor PlanWheatleyView Wheatley Details 1148 Sq. Ft. First Floor: 27’4″x36’0″/48’0″Optional Finished Upstairs 2nd Floor: 17’0″x36’0″Bedrooms: 2(4) Bathrooms :1 (2)View/Print Wheatley Floor PlanWindsorView Windsor Details 1421 Sq. Ft. First Floor Size: 27’4″x46’0″/58’0″Optional Finished Upstairs 2nd Floor: 17’0″x46’0″Bedrooms: 2(4) Bathrooms: 2(3) View/Print Windsor Floor PlanWoodlandView Woodland Details 1202 Sq. Ft. First Floor Size: 27’4″x44’0″Optional Finished Upstairs 2nd Floor: 17’0″x44’0″Bedrooms: 3(4) Bathrooms : 2View/Print Woodland Floor Plan